A COMMUNITY-USED pub, which closed during the Covid pandemic, may re-open now a holiday park expansion has been approved by Pembrokeshire County Council’s planning committee.
At the March 14 meeting, members approved plans for an extra eight luxury sustainable holiday units – and associated works – at Llanteglos Estate, Llanteg.
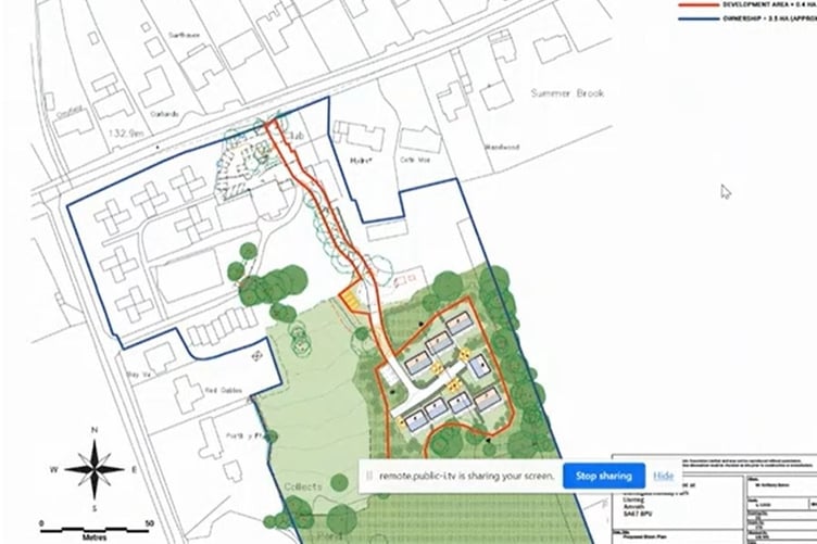
The application, by Anthony Baron, had been recommended for conditional approval; with the extra eight units taking the total number on site to 40.
Each two-storey low-impact eco-lodge will have a single car parking space, with electric charging facilities, along with four further visitor spaces.
A report for committee members stated: “The application is for an extension to the existing accommodation available at Llanteglos Park, to provide eight luxury sustainable holiday units.

“The existing holiday park currently offers 32 self-catering holiday units, eight of which could be occupied year round. The remaining 24 units are subject to an occupancy condition requiring them to be vacant during November, January and February in any year.
“There are a range of facilities on site including a gallery, children’s play area, tennis court and other recreational facilities. The supporting information suggests that the existing on-site public house is currently closed due to financial difficulty, however, it is suggested that this community facility would be brought back into use with additional on-site accommodation.”
The site currently provides employment for two full time employees, with the proposed development providing an additional two full time roles.
The application was supported by local community council Amroth, but three letters of objection were received, raising concerns about loss of trees, traffic generation, drainage arrangements and impact on amenity.
At the March 14 meeting, agent Oliver Cooper said planning officers had accepted the concerns raised by objectors were negligible.
On the issue of the public house, he said it had closed during the Covid pandemic, but had not reopened due to a decrease in demand, adding that the possibility the extra units could increase that demand, leading to a reopening.

Councillor Brian Hall moved the recommendation to approve, seconded by Councillor Mark Carter (pictured), who added: “The fact there’s this potential to reopen a community facility only reinforces it for me.”
Members unanimously backed the recommendation to approve the expansion and modernisation of the park.




.jpeg?width=209&height=140&crop=209:145,smart&quality=75)
Comments
This article has no comments yet. Be the first to leave a comment.